Woning te koop
Huis te koop in Ternat met 3 slaapkamers
Brusselstraat, 1740 Ternat
€476.600
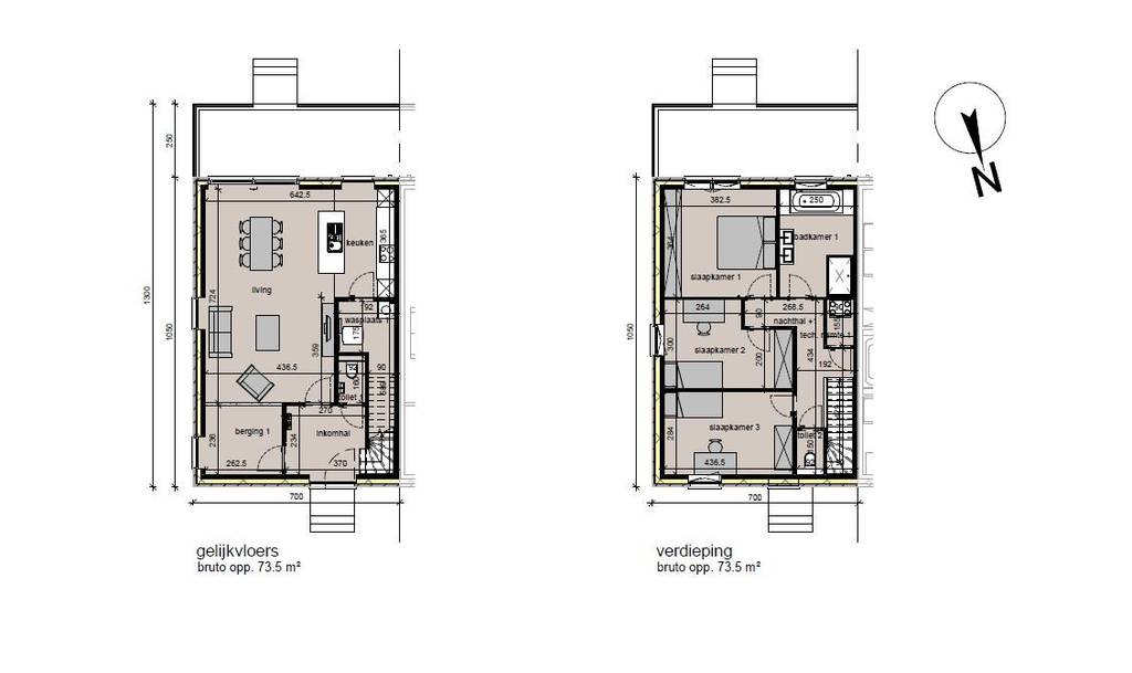
📐 147 m²🛏 3 slaapk.🚿 1 badkamer
Delen:
🖨 AfdrukkenOmschrijving
Ligging
📍 Brusselstraat, 1740 Ternat — Vlaams-Brabant
Kaart laden…
Kenmerken
✓Tuin
✓Zonnepanelen
✓Warmtepomp
Wettelijke informatie
- Stedenbouwk. bestemming
- residential
- Overstromingsrisico
- high
- Voorkooprecht
- Nee
- Renovatieplicht
- Nee
💰 Maandlasten berekenen
Pas aan en zie direct je budget
€ 476.600
€ 30.000
25 jaar
€ 3.800
Geschatte maandlast
€ 2.342 /maand
Hypotheek (3,4%)€ 2.212
KI (geschat)€ 95
Brandverzekering€ 35
⚠️ 61.6% van je inkomen — €1088/m boven de 33% norm.
💼 Vacatures in Ternat
T
Chauffeur B rijbewijs
T & T DESIGN
v
Pedagogisch directeur
vzw K.B.SO.T. (Sint-Jozefsinstituut)
B
Kassa Medewerker
BRICO PLAN-IT
I
HR Project Manager
INGUZ
🏘 Over Ternat
- Inwoners
- 16.665
- Oppervlakte
- 24,5 km²
- Waterloop
- Steenvoordebeek
- Provincie
- Vlaams-Brabant

Durabrik
Immokantoor
Gepubliceerd op 5/4/2026
Details
- Perceeloppervlak
- 273 m²
- Tuinoppervlak
- 200 m²