Kies foto's voor de advertentie (max 6, geselecteerd: 4):

Oreon Properties - Herentals
www.oreon-properties.be
Te huur
Gepubliceerd op 5/4/2026
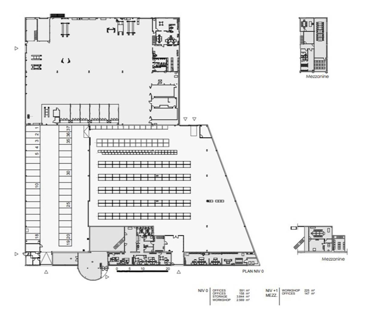
Commercieel te huur in Kontich
Andere · Satenrozen 8, 2550 Kontich (Antwerpen)




Details
| Bewoonbare opp. | 2.332 m² |